myImage (5)
myImage (7)
myImage (8)
myImage (6)
myImage

PRODANO!

Atraktivno građevno zemljište 643m2 sa projektom Ville – Maslinica, o. Šolta

Cijena: €275,000
ID: GZ-TP1025

Detalji objekta

643m²

Površina zemljišta

+

Pogled na more

Opis

Posredujemo u prodaji građevnog zemljišta na atraktivnoj lokaciji u mjestu Maslinica na otoku Šolta. Zemljište je 643m2 udaljeno od mora 200m sa odličnom pristupnom cestom(asfalt) i prekrasnim pogledom na more i otoke. Plaćeni su svi priključci za infrastrukturu i građevinska dozvola. U cijenu je uključena građevinska dozvola i  Projekt za izgradnju Ville(vidi opis ispod), tako da novi vlasnik može odmah početi sa gradnjom.

Projekt (opis)
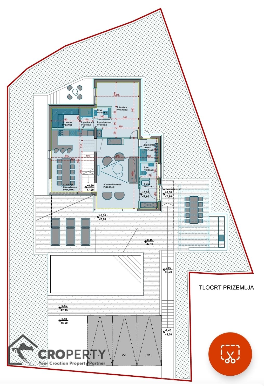
Villa se sastoji od jedne dvoetažne stambene jedinice. U prizemlju se nalazi dnevni boravak (P= 28 m2), kuhinja i blagovaonica (P= 22 m2), sauna i teretana, 2 wc-a, praonica rublja te ulazni prostor, a na katu se nalaze 4 spavaće sobe (svaka po 15 m2) sa tri kupatila (2 sobe imaju privatno kupatilo, a preostale 2 sobe imaju zajedničko kupatilo) te natkrivena terasa (P= 30 m2). U dvorištu Ville se nalazi natkrivena terasa sa ljetnom kuhinjom i roštiljem, bazen i terasa sa ležaljkama te tri natkrivena parkirna mjesta.

Više o okolici

Maslinica je slikovito naselje smješteno na zapadnom dijelu otoka Šolte, poznato po kristalno čistom moru, predivnim uvalama i otočićima koji se prostiru ispred nje. Nastala je oko baroknog dvorca Marchi iz 18. stoljeća, koji danas krasi obalu kao luksuzni hotel. Mjesto odiše mediteranskim šarmom, s kamenim kućama, uskim ulicama i mirisima borova i mora. Maslinica je idealna destinacija za miran odmor, jedrenje i uživanje u autentičnoj dalmatinskoj atmosferi. Ljubitelji aktivnog odmora mogu istražiti brojne biciklističke i pješačke staze, dok gastronomi mogu uživati u domaćem maslinovom ulju, svježoj ribi i lokalnim vinima. Ljeti se ovdje održavaju razna kulturna i ribarska događanja koja oživljavaju tradiciju otoka. Zbog svoje ljepote i očuvanosti, Maslinica je jedna od najatraktivnijih destinacija na Šolti.

Tip nekretnine
Odaberite...
Tip nekretnine
Regija
Lokacija
Odaberite...
Lokacija
Raspon cijene
Raspon cijene - slider
Raspon cijene - inputs
Broj soba
Broj soba
Broj soba
Pogodnosti
Pogodnosti
Stambena površina
Stambena površina - slider
Stambena površina - inputs
Površina zemljišta
Površina zemljišta - slider
Površina zemljišta - inputs
Vrsta zemljišta
Odaberite...
Vrsta zemljišta