Zgrada
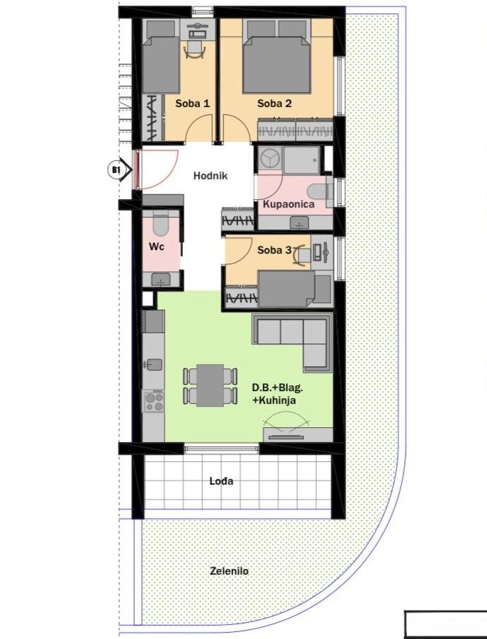
Tlocrt
Površine
Projekt
Projekt2

NOVOGRADNJA – Trosoban stan s vrtom | Mogućnost kupnje putem kredita!

Cijena: €229,000
ID: ST-ZG300126

Detalji objekta

93.51m²

Kvadratura

3

Broj soba

1

Kupaona

2026

Godina izgradnje

+

Lift

JUG-ZAPAD

Orijentacija

Opis

Posredujemo u prodaji trosobnog stana ukupne površine 93,51 m², smještenog u suterenu moderne stambene zgrade u izgradnji, na mirnoj i traženoj lokaciji u Solinu.

Zgrada se nalazi u ugodnom obiteljskom okruženju koje nudi savršenu ravnotežu mira i praktičnosti. U neposrednoj blizini dostupni su svi sadržaji potrebni za kvalitetan svakodnevni život – škole, vrtići, ljekarna, trgovine, kao i odlična prometna povezanost s ostatkom grada.

Neto stambena površina stana iznosi 53.79 m², orijentiran je prema zapadu i jugu, a sastoji se od:

  • kuhinje, blagovaonice i dnevnog boravka
  • tri spavaće sobe
  • kupaonice
  • wc-a
  • hodnika

Dodatnu vrijednost stanu daju:

  • lođa površine 7,17 m²
  • zelena površina / vrt od 32,55 m² s zapadne strane stana

Obavezna je kupnja jednog parkirnog mjesta:

  • garažno parkirno mjesto: 19.000 – 25.000 €
  • vanjsko parkirno mjesto: 12.000 €

Sve stambene jedinice povezane su s garažnim etažama dizalom i stubištem, što osigurava dodatnu udobnost i funkcionalnost.

Ovdje je riječ o provjerenom investitoru i izvođaču radova, čije su izvrsne reputacije u građevini neupitne, a što pokazuje i gotovo potpuna rasprodaja svih stambenih jedinica te podrška banke koja ih prati. Dakle, postoji mogućnost kupnje stana preko projektnog financiranja tj stambenog kredita.

Iskoristite priliku i osigurajte svoj dom u jednom od posljednjih dostupnih stanova!

Planirani završetak gradnje: prosinac 2026.

Dodatne informacije, točna lokacija i razgledavanje nekretnine dostupni su isključivo uz prethodno potpisivanje Ugovora o posredovanju, sukladno Zakonu o zaštiti osobnih podataka i Zakonu o posredovanju u prometu nekretnina.

 

Agencijska provizija: 2% (ne plaća se PDV)

Agent za kontakt: Zlatko +385 91 206 6777

 

 

Croperty Nekretnine – dodatne usluge

  • stručna procjena tržišne vrijednosti vaše nekretnine
  • izrada energetskog certifikata u suradnji s ovlaštenim certifikatorima
  • profesionalna izrada tlocrta nekretnine
  • savjetovanje i posredovanje pri odabiru banke te ishođenju stambenog kredita
  • promjena korisnika za kompletne režije prilikom kupoprodaje

Naš cilj je pružiti vam potpunu podršku – od prve procjene do uspješno realizirane transakcije.

Više o okolici

Solin je povijesno izuzetno važan grad jer je na njegovu području smještena antička Salona, nekadašnja prijestolnica rimske provincije Dalmacije. Danas je Solin moderan i brzo rastući grad koji se naslanja na Split, ali je zadržao vlastiti identitet i snažan lokalni duh. Grad je poznat po rijeci Jadro, izvoru pitke vode još od rimskih vremena, koja ima veliku prirodnu i kulturnu vrijednost. Solin ima važno mjesto u hrvatskoj povijesti jer je povezan s dolaskom Hrvata i razvojem ranosrednjovjekovne države. Osim bogate baštine, Solin je i živ grad s brojnim manifestacijama, sportskim aktivnostima i kvalitetnim životom za svoje stanovnike.

Tip nekretnine
Odaberite...
Tip nekretnine
Regija
Lokacija
Odaberite...
Lokacija
Raspon cijene
Raspon cijene - slider
Raspon cijene - inputs
Broj soba
Broj soba
Broj soba
Pogodnosti
Pogodnosti
Stambena površina
Stambena površina - slider
Stambena površina - inputs
Površina zemljišta
Površina zemljišta - slider
Površina zemljišta - inputs
Vrsta zemljišta
Odaberite...
Vrsta zemljišta